£ 249995
Offers above this

Ownership: Freehold
Condition: Good condition
Purpose: No
Reception : 1
Home age : 25
Large Kitchen/ Diner
Bathroom on Ground Floor
Spacious Lounge
Private Enclosed Garden
Double Garage
Driveway
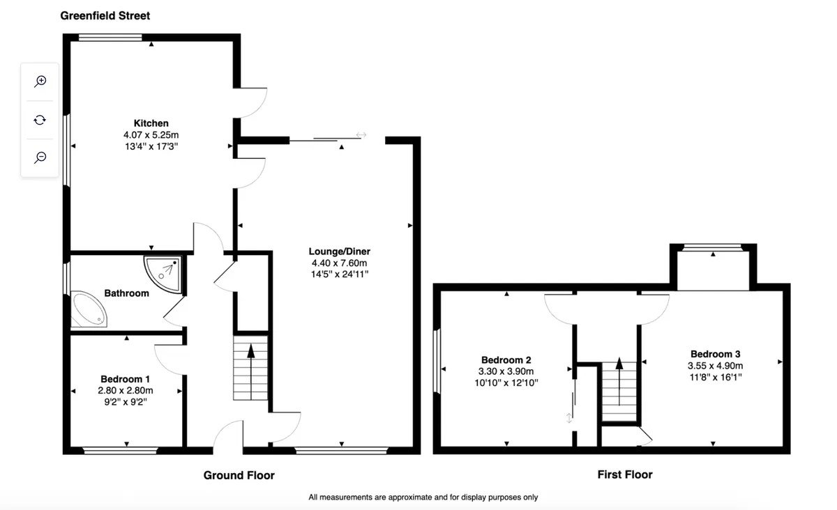
Extended Family Living in the Heart of Bonnybridge Welcome to 2 Greenfield Street, a beautifully extended 3-bedroom detached home set on a generous corner plot in one of Bonnybridge's most established residential streets. Offering flexible living over two levels, this property is ideal for families seeking space, comfort, and a seamless indoor-outdoor lifestyle. Property Highlights - Stunning Kitchen - Positioned at the rear of the home and boasting a central island, sleek cabinetry, and excellent prep space - perfect for cooking and entertaining -Dining Room - Flowing from the kitchen and complete with patio doors that lead onto a sun terrace - perfect for summer gatherings -Spacious Lounge - Bathed in natural light and offering ample room for relaxing or hosting, with dual access via the dining room and main hallway - 4-Piece Bathroom - Downstairs family bathroom featuring a luxurious corner bath and separate shower cubicle - Three Bedrooms - Two generous doubles upstairs, with the main bedroom benefiting from fitted mirrored wardrobes, and a third versatile bedroom on the ground floor - Double Garage & Driveway - Ample off-street parking and secure storage - Mature Wraparound Garden - A beautifully maintained and private outdoor space with lawn, sun terrace and room for planting or play Why 2 Greenfield Street, Bonnybridge, FK4 1PF Is a Great Place to Live: Set in a quiet, well-established part of Bonnybridge, this home offers the perfect balance of peaceful residential living with convenient access to local amenities, schools, and transport links. The area is popular with families thanks to its friendly community feel and proximity to scenic walks, local parks, and the Forth & Clyde Canal. With excellent road access to Falkirk, Stirling, and the M80 corridor, commuting is a breeze.
Monthly repayments
* These results are for a repayment mortgage and are intended as a guide only. Make sure you obtain accurate figures from your broker/lender before committing to any mortgage. The tool, its content and its output are not intended as financial or professional advice nor as an application, offer, solicitation or advertisement as to any loan or loan features, and should not be your primary source of information about mortgage possibilities for you.
Homeilove.co.uk is operated by HOMEILOVE LIMITED with Companies House No: 15647848 registered in England & Wales