£ 850000
Guide price

Ownership: Freehold
Condition: Newly build
Purpose: No
Reception : Yes
Home age : Under 5 yrs
21' long Lounge with Square Bay Window
Garage
Drive and EV charging point
En-Suite shower room to Bedroom One
Walking distance to Shops
school & Station
Discover Abbey Savings Solutions
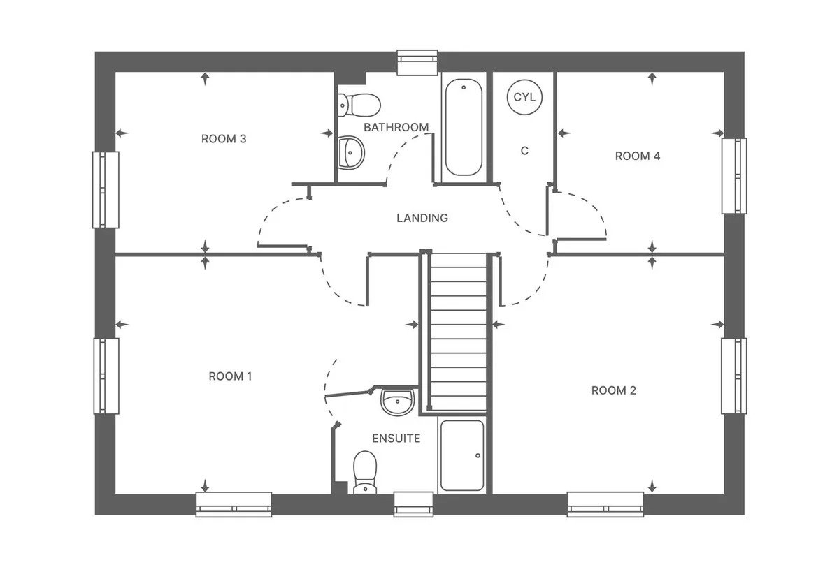
An 1,384 square feet four bedroom new family home. Upon entering, you are greeted by a large lounge that provides a welcoming atmosphere for relaxation and entertainment. The heart of the home is undoubtedly the open plan kitchen/dining/family room, which is designed for both functionality and style. This space is equipped with integrated kitchen appliances, ensuring that cooking and hosting are a delight. Additionally, a separate utility room adds convenience to daily chores. There are just three Fernwood house types at Orchard Gardens, with its contemporary design and thoughtful layout, This Plot has an adjacent garage with two additional parking spaces, EV point and pv panels. It is perfectly positioned to enjoy the amenities of St Albans, a must-see for anyone seeking a blend of elegance and practicality in a sought-after location. Anticipated EPC - Band A Council Tax Band - tbc Photos are taken of similar house types on other developments and the specification may vary.
Monthly repayments
* These results are for a repayment mortgage and are intended as a guide only. Make sure you obtain accurate figures from your broker/lender before committing to any mortgage. The tool, its content and its output are not intended as financial or professional advice nor as an application, offer, solicitation or advertisement as to any loan or loan features, and should not be your primary source of information about mortgage possibilities for you.
Homeilove.co.uk is operated by HOMEILOVE LIMITED with Companies House No: 15647848 registered in England & Wales